求使用fx3u-凯发网址

wenqing1012
级别: 家园常客
精华主题: 0
发帖数量: 542 个
工控威望: 823 点
下载积分: 2478 分
在线时间: 495(小时)
注册时间: 2006-11-03
最后登录: 2025-09-19
/
楼主  发表于: 2021-01-07 11:07
|
图片:
求大佬编写一份使用fx3u-485adp-mb控制三菱变频器e740启动,停止,改变频率的一段程序,实验成功可付辛苦费。
谢谢!


下面文件经过总结试验,程序可以使用
[ 此帖被wenqing1012在2021-01-10 07:41重新编辑 ]
附件: (616 k) 下载次数:109
机会是自己创造的!
huiming
技术交流
级别: 网络英雄
精华主题: 0
发帖数量: 643 个
工控威望: 6022 点
下载积分: 4573 分
在线时间: 586(小时)
注册时间: 2011-03-09
最后登录: 2025-09-30
查看huiming的 主题 / 回贴
1楼  发表于: 2021-01-07 11:21
|
图片:
485专用指令就搞定了
士林变频器代理 18312516885
wenqing1012
级别: 家园常客
精华主题: 0
发帖数量: 542 个
工控威望: 823 点
下载积分: 2478 分
在线时间: 495(小时)
注册时间: 2006-11-03
最后登录: 2025-09-19
/
2楼  发表于: 2021-01-07 11:30
|
引用
引用第1楼huiming于2021-01-07 11:21发表的  :
485专用指令就搞定了

能麻烦您写段程序和注释吗?控制启动、停止、改变频率的程序。
使用485adp通讯适配器的。
机会是自己创造的!
wenqing1012
级别: 家园常客
精华主题: 0
发帖数量: 542 个
工控威望: 823 点
下载积分: 2478 分
在线时间: 495(小时)
注册时间: 2006-11-03
最后登录: 2025-09-19
/
3楼  发表于: 2021-01-07 20:10
|
难道没有会做的吗?
可以支付辛苦费的。
机会是自己创造的!
梦雨天涯
微信hui530527   &
级别: 网络英雄
精华主题: 0
发帖数量: 4959 个
工控威望: 8396 点
下载积分: 18531 分
在线时间: 3471(小时)
注册时间: 2016-10-31
最后登录: 2025-09-29
查看梦雨天涯的 主题 / 回贴
4楼  发表于: 2021-01-08 08:52
|
引用
引用第3楼wenqing1012于2021-01-07 20:10发表的  :
难道没有会做的吗?
可以支付辛苦费的。

论坛里面大把的,你要学会搜索啊
微信hui530527      b站账号,非标自动化谭工
请不要随意加我,不会随便通过。
工控技术交流qq群942493953
wenqing1012
级别: 家园常客
精华主题: 0
发帖数量: 542 个
工控威望: 823 点
下载积分: 2478 分
在线时间: 495(小时)
注册时间: 2006-11-03
最后登录: 2025-09-19
/
5楼  发表于: 2021-01-08 08:57
|
引用
引用第4楼梦雨天涯于2021-01-08 08:52发表的  :

论坛里面大把的,你要学会搜索啊

谢谢回复
用fx3u485bd控制变频器是没有问题的,但是485adp是不同的通讯方式,论坛里面没有见到。
机会是自己创造的!
liutianqi
级别: 探索解密
精华主题: 0
发帖数量: 42 个
工控威望: 163 点
下载积分: 2008 分
在线时间: 240(小时)
注册时间: 2013-11-25
最后登录: 2025-09-30
/
6楼  发表于: 2021-01-08 09:21
|
加我微信qiqi097362
hzydlzp
级别: 探索解密
精华主题: 0
发帖数量: 69 个
工控威望: 175 点
下载积分: 48054 分
在线时间: 252(小时)
注册时间: 2015-11-14
最后登录: 2025-10-01
查看hzydlzp的 主题 / 回贴
7楼  发表于: 2021-01-08 19:08
|
图片:
图片:
图片:
图片:
图片:
图片:
图片:
图片:
图片:
图片:
图片:
你好,参考下看看这行不行,这是同台达变频器通信的,写的不好莫见笑
[ 此帖被hzydlzp在2021-01-08 19:15重新编辑 ]
wenqing1012
级别: 家园常客
精华主题: 0
发帖数量: 542 个
工控威望: 823 点
下载积分: 2478 分
在线时间: 495(小时)
注册时间: 2006-11-03
最后登录: 2025-09-19
/
8楼  发表于: 2021-01-08 21:18
|
非常感谢楼上的老师,我用的是三菱e700变频器,已经找六楼的老师咨询了 ,虽然还有点问题,总的来说有方向了,再慢慢考虑一下。祝您开心!
机会是自己创造的!
hzydlzp
级别: 探索解密
精华主题: 0
发帖数量: 69 个
工控威望: 175 点
下载积分: 48054 分
在线时间: 252(小时)
注册时间: 2015-11-14
最后登录: 2025-10-01
查看hzydlzp的 主题 / 回贴
9楼  发表于: 2021-01-08 22:46
|
引用
引用第8楼wenqing1012于2021-01-08 21:18发表的  :
非常感谢楼上的老师,我用的是三菱e700变频器,已经找六楼的老师咨询了 ,虽然还有点问题,总的来说有方向了,再慢慢考虑一下。祝您开心!

客气,互相学习
东哥00789
级别: 探索解密
精华主题: 0
发帖数量: 44 个
工控威望: 147 点
下载积分: 528 分
在线时间: 39(小时)
注册时间: 2015-09-19
最后登录: 2023-08-18
/
10楼  发表于: 2021-01-28 14:33
|
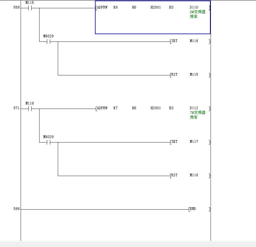
fx3u-485adp-mb这个模块只要比485bd简单多了,用adprw指令就行
wenqing1012
级别: 家园常客
精华主题: 0
发帖数量: 542 个
工控威望: 823 点
下载积分: 2478 分
在线时间: 495(小时)
注册时间: 2006-11-03
最后登录: 2025-09-19
/
11楼  发表于: 2021-01-28 19:09
|
引用
引用第10楼东哥00789于2021-01-28 14:33发表的  :
fx3u-485adp-mb这个模块只要比485bd简单多了,用adprw指令就行

谢谢,问题已经解决,通讯正常了。
机会是自己创造的!

    网站地图